
泰投科创产业园:
泰投科创产业园项目位于新乡市高新技术开发区公交新荷场站以西、南二环以南、新飞大道以东。
项目规划用地面积47498.0平方米(约71.25亩),总建筑面积90758.46平方米,其中地上建筑面积81518.75平方米,地下建筑面积9239.71平方米,容积率1.72,建筑密度45%,绿地率19.66%,机动车停车251辆,其中地上停车129辆,地下停车122辆。各项经济指标均满足规划要求。
项目分两期建设实施,一期主要建设1栋小微企业孵化器和4栋办公楼,目前已入驻企业60余家;二期建设13栋楼,主要建设1栋数据中心、1栋园区创客公寓、1栋运营服务中心及10栋多层花园式生产厂房。
本项目以“科研+办公+生产”为主题,集电子商务、科技研发、生产办公、教育培训、大数据、金融创新等为一体的综合型科技园区,倾力打造新乡科技创新示范标杆园区。
户型平面图展示:







300-700平方米的科研办公楼、300-2000平方米的多层花园生产厂房,为大、中、小型企业提供生产办公、科技研发、互联网等服务型平台。自用、投资两相宜!
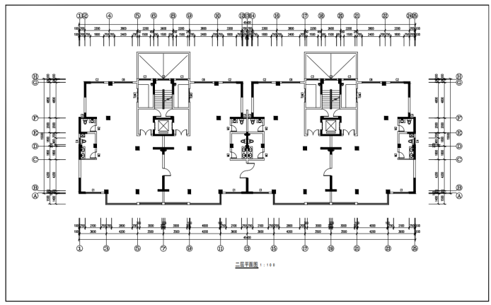
科研办公楼:C1、C2、C3、C4号楼,地下建筑面积2844.72平方米。单栋面积3625.24平方米;
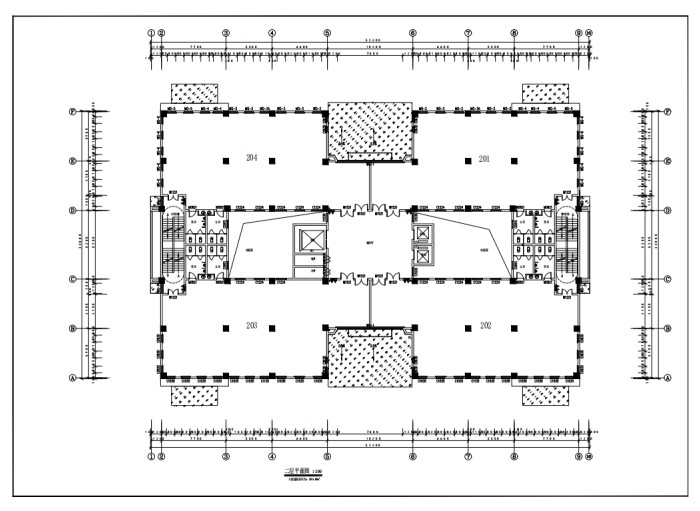
企业孵化器:B#楼,长65.4米,宽38米。基层面积2343平方米,总面积7058平方米;
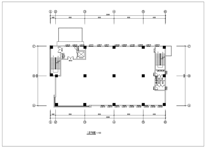
运营服务中心:多层建筑,1楼、2楼商业中心,3-5楼多套墅质办公LOFT,层高5.8米,顶层企业沙龙,总建筑面积5990.12平方米;
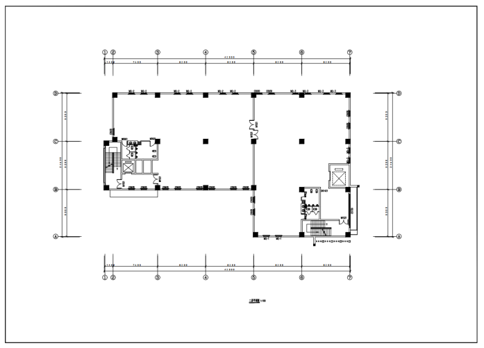
厂办一体:E1、E2#楼,每幢楼共计5层,精装大堂,单层建筑面积约在1380平方米.
企业独栋:F1、F2#楼,建筑为4层框架结构建筑,单层面积约在500㎡,一部客梯、两部步梯,客梯可直达屋面。
多层花园生产厂房:厂房为四层建筑,首层层高6米、6.5米,单层建筑面积在899.43、823.36平方米,货车直达一楼,叉车可上下货梯。
项目地址:新乡市南外环路99号
招商热线:0373-2823333285333317656193665
